Viola Pititto
RIBA Part I Architect
![]() | ![]() | ![]() | ![]() | ![]() |
|---|---|---|---|---|
![]() | ![]() | ![]() | ![]() | ![]() |
![]() | ![]() | ![]() |
GAGARIN SQUARE: TEMPORARY DWELLING UNITS
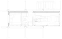
The Gagarin Square project was focused on developing one or more temporary dwelling units and one or more communal spaces, which needed to be clipped onto the concrete skeleton of the unfinished building on site. Each student was allocated with 15 blocks (W3mxD3mxH3.5m) of the grid all linked together.
For these blocks I designed 3 indipendent off-grid living units, a communal roof terrace and a stair system to be clipped onto the structure. Each module of both the living and stairs units would be prefabricated in a factory and then transported and assemble on site.
Each unit is provided with solar panels, compost toilet and rainwater collecting system and is highly insulated in order to be completely autonomous. Being completely independent and easy to transport they could also be relocated elsewhere over time.
WHAT
Temporary dwelling,
Off-Grid,
Modular Units
WHERE
Southwark
London, UK
WHEN
2015 - 2016












